REQUEST A TOUR If you would like to see this home without being there in person, select the "Virtual Tour" option and your agent will contact you to discuss available opportunities.
In-PersonVirtual Tour

$ 695,000
Est. payment /mo
Active
5020 Jason Ave NE Albertville, MN 55301-9688
5 Beds
3 Baths
2,370 SqFt
UPDATED:
Key Details
Property Type Commercial
Listing Status Active
Purchase Type For Sale
Square Footage 2,370 sqft
Price per Sqft $293
Bedrooms 5
Full Baths 3
Property Description
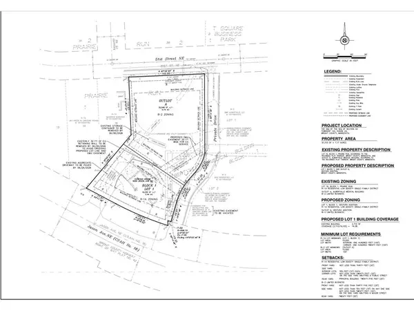
GREAT INVESTMENT OPPORTUNITY in a PRIME LOCATION offering MULTIPLE DEVELOPMENT OPTIONS. Potential options include; retain full parcel for investment and future development, split the home from approximately .74 acres to create a commercial lot, or subdivide to create an additional residential lot. The property is currently a residential parcel featuring a 2,370 sq ft four-level home situated on 1.09 acres that is currently rented for $3000.00 per month. Seller currently has an application submitted with the City proposing the following split: the existing home on approximately .44 acres, and the north half as an approximately .74-acre commercial lot (see attached City recommendation and concept's). The proposed .74-acre commercial lot has potential for a 5,000 sq ft building with approximately 26 parking spaces (see attached documentation). All subdivision and development subject to City approval. PID #101-118-000010 is included in the sale.
Location
State MN
County Wright
Listed by Tami Biegert • RG/ LPT Realty






