Single Family Home $ 695,000

5020 Jason Ave NE

Albertville, MN 55301-9688

  • 5 Beds
  • 3 Baths
    Full Baths: 3
  • 2,370 SqFt
  • - Year Built
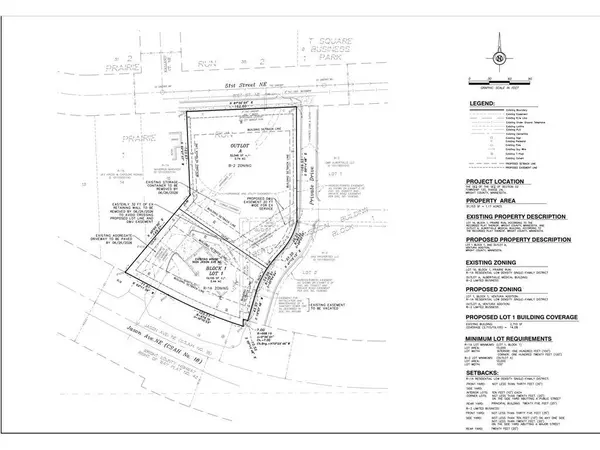
GREAT INVESTMENT OPPORTUNITY in a PRIME LOCATION offering MULTIPLE DEVELOPMENT OPTIONS. Price reflects the development value of the property. The home is currently rented for $3000.00 per month. Potential options include retaining full parcel for investment and future development, split the home from approximately .74 acres to create a commercial lot, or subdivide to create an additional residential lot. (See concept) Seller currently has an application submitted with the City proposing the following split: the existing home on approximately .44 acres, and the north half as an approximately .74-acre commercial lot (see attached City recommendation and concept's). The proposed .74-acre commercial lot has potential for a 5,000 sq ft building with approximately 26 parking spaces (see attached documentation). All subdivision and development subject to City approval. PID #101-118-000010 is included in the sale.
Listed by Tami Biegert of RG/ LPT Realty

PROPERTY DETAIL

  • Key Details

    Property Type Single Family Home

    Listing Status Active

    Purchase Type For Sale

    Square Footage 2, 370 sqft

    Price per Sqft $293

    Bedrooms 5

    Full Baths 3

  • Location

    State MN

    County Wright

GET IN TOUCH

Your Full Name
Your Phone Number*
Write Your Message